ГМС-150 Система гидромагнитная
Станция осветления воды ПРОМВОДОЧИСТКА ПВО-05FM01-S-X-Z-GZSTCO
Код товара 2065957Задать вопрос
Написать отзыв
Делитесь опытом
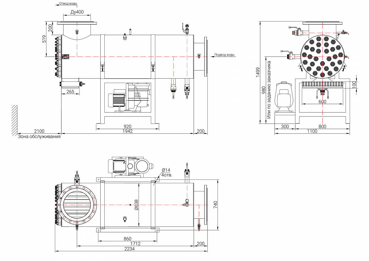
Станция ПВО-05FM01-S-X-Z-GZSTCO представляет собой оборудование для осветления воды, разработанное для ее подготовки в качестве питьевой. Производительность данной модели составляет 30 куб.м/час.
Комплектация включает затворы Сomer, с приводом GZ и автоматизированным щитом управления, который обеспечивает контроль над процессом фильтрации. В течение эксплуатации фильтрующего элемента постепенно возникает загрязнение, что может привести к уменьшению пропускной способности системы. Свойства фильтрующей загрузки восстанавливаются благодаря проведению обратной промывки.
ПРОМВОДОЧИСТКА

Россия — родина бренда
Россия — страна производства
Отзывы и вопросы о товаре
- 5 0%
- 4 0%
- 3 0%
- 2 0%
- 1 0%